
Gegenwart und Zukunft: Die kleine Kirche der Neuapostolischen Gemeinde am Moreller Weg soll ab nächster Woche abgerissen werden. An ihrer Stelle entsteht ein Wohnhaus für zehn Familien. Der Dachfirst zwischen den beiden Giebeln (Bild unten) liegt exakt auf der gleichen Höhe wie der heutige Blitzableiter, die beiden Spitzgiebel links und rechts sind etwa einen Meter höher. Die Blickrichtung ist auf beiden Bildern die gleiche. // Foto: Ulrich Simons - Planung: Christoph Damm, Dortmund

|
aktualisiert 26. März 2021
Am Montag kommt der Bagger:
Moreller Weg 50 wird Franziskusweg 12
Die Tage der kleinen neuapostolischen Kirche (NAK) an der Ecke Moreller Weg / Franziskusweg sind gezählt: Wenn alles nach Plan verläuft, beginnt am Montag der seit langem geplante Abriss. Das teilte Architekt Christoph Damm (Dortmund) am Freitag auf Anfrage mit. Anschließend soll hier ein Wohnhaus mit zehn barrierefreien Mietwohnungen entstehen.
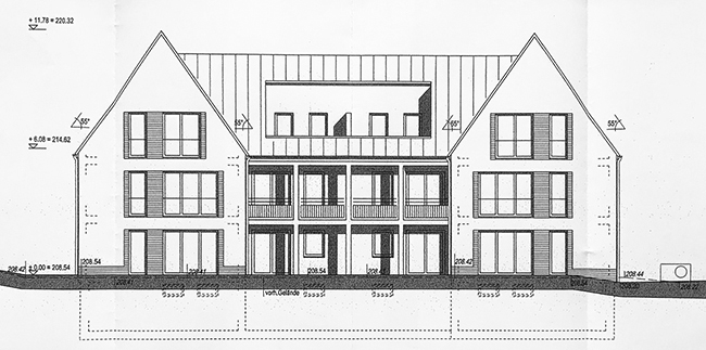
Was auf den ersten Blick auffällt (siehe Zeichnung oben): Das Haus scheint keinen Eingang zu haben. Hat es natürlich doch, nur wird der sich künftig nicht mehr am Moreller Weg befinden.
Ausgesprochen clever
Der Eingangsbereich wird sich an der Nordseite des Hauses befinden, weshalb die künftige Anschrift der neuen Bewohner "Franziskusweg 12" lauten wird. Das ist ausgesprochen clever gemacht, denn die Südseite ist für einen Eingang und ein Treppenhaus viel zu wertvoll.
Hier auf der Nordseite sind auch ein Abstellraum und sechs Fahrrad-Stellplätze geplant. Nicht so schön ist der daran anschließende offene Müllplatz gleich an der Grenze zum Nachbargerundstück.
Da das neue Wohnhaus mehr oder weniger an der gleichen Position entstehen wird, an der (noch) die Kirche steht, bleiben acht Parkplätze am Moreller Weg erhalten. Die werden allerdings samt Zufahrt ein bisschen nach links verschoben, so dass sich auf der Ecke zum Franziskusweg Platz für einen 60 Quadratmeter großen Spielplatz auftut. Dafür sind sie mit einer geplanten Breite von 2,60 Metern auch SUV-tauglich.
Das ist dann auch die einzige wirkliche Schwachstelle des ansonsten recht geglückten Entwurfs. Denn ob die neuen Mieter es so toll finden, bei Wind und Wetter mit ihren Einkäufen erst einmal ums Haus laufen zu müssen, muss sich noch zeigen.
Die Bauflucht zum Franziskusweg hin orientiert sich am aktuellen Bestand, so dass zwischen dem Neubau und dem Bürgersteig auch künftig ein gut fünf Meter breiter Grünstreifen verbleibt. Hier soll sich der Zugang zum Spielplatz befinden, damit die Knirpse nicht zwischen den Autos herumlaufen müssen.
Tiefgarage war nie ein Thema
Eine Tiefgarage sei nie ein Thema gewesen, berichtet Architekt Christoph Damm. "Das kann kein Mensch bezahlen. Da brauchen Sie anschließend über Vermieten nicht mehr nachzudenken."
Die Innenaufteilung des Hauses erfolgt nach dem auch bei vielen Fußballspielen bewährten Zahlenschlüssel 4 - 4 - 2. Soll heißen: Im Erdgeschoss und auf der ersten Etage gibt es jeweils vier Wohnungen, im Dachgeschoss zwei.
Die vier nach Süden ausgerichteten, 95 Quadratmeter großen Wohnungen verfügen im Erdgeschoss über eine Terrasse und auf der ersten Etage über je einen zehn Quadratmeter großen Balkon. Die Bewohner der Dachgeschosswohnungen können die Sonne demnächst auf ihrer Dachterrasse genießen. Die kleineren, nach Norden ausgerichteten Wohnungen (64 Quadratmeter) haben jeweils eine Loggia an der kurzen Seite des Hauses, also entweder mit Morgen- oder Abendsonne.
Alle Wohnräume sind mit einer Fußbodenheizung ausgestattet, die über eine Luftwärmepumpe betrieben wird. (Wie sowas funktioniert, können Sie hier lesen.) Bedenken zur Geräuschentwicklung des Aggregates, das genau gegenüber von Haus Nr. 15 im Grünstreifen vor dem Neubau platziert werden soll, hält Architekt Christoph Damm für unbegründet: "Auf der anderen Straßenseite hören Sie die nicht mehr."
Jetzt fehlt eigentlich nur noch die Baugenehmigung.
Der Antrag liegt seit dem 9. Dezember vergangenen Jahres beim Bauordnungsamt der Stadt ...

Der Eingang zur neuen Immobilie befindet sich nicht mehr am Moreller Weg, sondern auf der Nordseite des Hauses am Franziskusweg. // Planung: Christoph Damm, Dortmund
Nachtrag
Im ersten Beitrag fehlten noch die Ansichten der Ost- und der Westseite. Hier kommen sie:

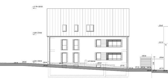
Die künftige Ansicht vom Franziskusweg aus. Die kleineren Wohnungen zur Nordseite hin (rechts) verfügen über zwei Loggien, je nach Ausrichtung mit Morgen- oder Abendsonne. Links vom Haus, an der Ecke zum Moreller Weg, ist noch ein kleiner Spielplatz geplant. // Planung: Christoph Damm, Dortmund

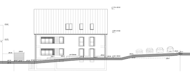
Der Blick von Westen (Amsterdamer-Ring-Seite). Am Moreller Weg (rechts) wird sich wie heute schon ein Parkplatz mit acht Stellplätzen befinden. Zwei weitere sind am Franziskusweg geplant. // Planung: Christoph Damm, Dortmund |
Lesen Sie hierzu auch:
07.09.2019 Moreller Weg: Was wird aus der kleinen Kirche?
02.12.2019 Was immer es auch wird: Ein Parkhaus wird es nicht
12.02.2020 Verwaiste Kirche am Moreller Weg: Baupläne nehmen Formen an
10.10.2020 Moreller Weg: Statt
kleiner Kirche ein Zehn-Familien-Wohnhaus
|